
この記事では、注文住宅の間取りで後悔しやすいポイントと、家事がラクになる間取りの作り方を徹底解説します。
注文住宅の最大の魅力は、間取りを自由に設計できること。しかし、自由度が高い分、「こうすればよかった」という後悔も生まれやすいのが現実です。
「家事動線が悪くて毎日ストレス」「収納が足りなくて物が溢れる」「生活音が気になって眠れない」こうした失敗は、事前に知識があれば防げるものばかりです。
この記事では、オヒサマノイエで実際に建てた間取り実例や、人気の設備・収納、そして後悔しないための9つの重要ポイントを紹介します。
女性コーディネーターの視点から「家事ラク」を実現するプロの解決策もお伝えしますので、ぜひ参考にしてください。
まずは以下の動画を見ていただき、間取りの考え方の参考にしてみてください。
オヒサマノイエで建てた注文住宅の間取り例
こちらでは、オヒサマノイエで実際に建てた注文住宅の間取り例を紹介します。それぞれの間取りには、家事動線や収納、家族のコミュニケーションを考えた工夫が詰まっています。
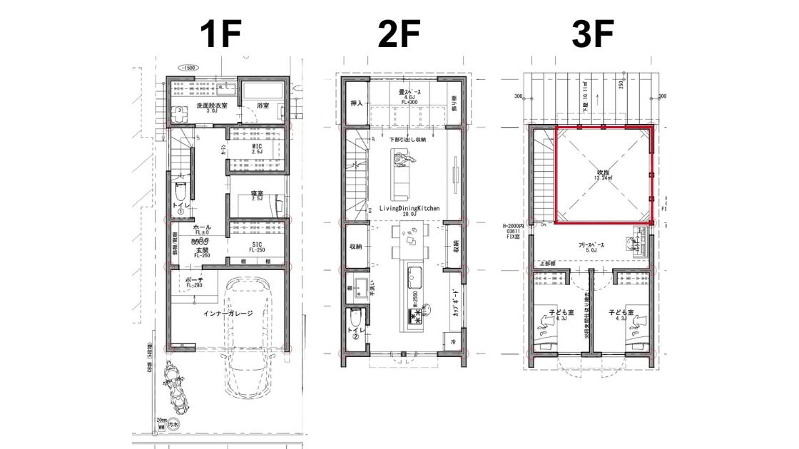
例1:家事効率UPの間取り

こちらの家の間取りはキッチン→パントリー→洗面所→ランドリールーム→ファミリークローゼットをぐるぐる回れる動線が特徴です。
- 洗濯から収納まで一直線:ランドリールームで洗濯物を干し、そのままファミリークローゼットへ
- 買い物後の動線も最短:玄関→パントリー→キッチンで食材をスムーズに収納
- LDK20畳+和室4.5畳:子どもが遊ぶスペースも確保しながら、キッチンから全体を見渡せる
洗濯物を2階に運ぶ手間がなくなるため、家事時間が短縮できます。また、回遊動線のおかげで、家事中も子どもの様子が見えやすいため、安心して家事ができるのも特徴です。

例2:吹き抜けで開放感あふれる

この家の間取りは、リビングに吹き抜けを設け、リビングから続くウッドデッキで、室内外の一体感を演出しています。
- 2階まで光が届く吹き抜け:1階リビングが明るく、開放的な空間に
- ウッドデッキで外遊び:子どもの遊び場、バーベキュー、夫婦のくつろぎスペースとして活躍
- 高気密高断熱で冷暖房効率◎:吹き抜けがあっても、冬暖かく夏涼しい
吹き抜けがあることで家全体が明るくなり、昼間は照明いらずで開放的な間取りです。
ウッドデッキを設置することで子どもが遊んでいる様子を見守りながらキッチンで家事ができます。

例3:アイランドキッチンだからくるくる回れるダイニング

この家にはアイランドキッチンを設けているため、両サイドからキッチンにアクセスできる間取りになっています。
- くるくる回れる回遊動線:行き止まりがないため、配膳や片付けの移動が最短ルートでスムーズ
- 多方向からアクセス可能:冷蔵庫やシンクへ誰でもアクセスしやすく、家族が自然とお手伝いできる
- 開放的なダイニング空間:キッチンを囲むように人が集まり、料理中も会話が途切れない
キッチンを中心にぐるりと回れる配置は、家事効率が良いだけでなく、複数人でキッチンに立っても渋滞しないのが魅力です。
忙しい朝の準備や、友人を招いてのホームパーティーなど、人が集まる機会の多いご家庭で特に使い勝手の良さを実感できます。
>>ぐるぐるキッチン動線と垢抜けダイニングのある家@寝屋川市

例4:豊かな自然の中に建つ暮らしやすい平屋

この家は、階段がなく、すべての生活空間がワンフロアで完結する平屋の間取りです。2階に洗濯物を運ぶ手間がないので、家事もラクラクです。
- 階段の上り下りがない:子育て中も、老後も安心
- 寝室・子ども部屋・LDKが近い:家族の気配を感じながら暮らせる
- 勾配天井で開放感:25坪でも広く感じる工夫
内装は無垢材を使用することで気の温かみを演出しています。家具も弊社の取り扱っている家具を導入いただき、まるでカフェのような空間になりました。

注文住宅の間取りで人気のおすすめスペース・収納・設備
こちらでは、後悔ゼロの間取りで人気のスペース・収納・設備TOP10を紹介します。オヒサマノイエで実際に多くの方が取り入れている、満足度の高い設備ばかりです。
「洗濯」「料理」「片付け」の家事時間を劇的に短縮する3つの設備を紹介します。
ランドリールーム

ランドリールームとは、「洗う」「干す」「アイロンがけ」「畳む」といった洗濯に関する一連の家事を、一箇所で完結させるために設けられた専用スペースです。
洗濯物を運ぶ移動距離が大幅に短縮され、家事効率が向上します。
また、天候を気にせず室内干しができ、生活スペースに洗濯物が露出しないため、生活感を隠せるメリットがある、家事ラクの最強設備です。
【メリット】
- 洗濯物を運ぶ移動距離が短縮され、家事負担が軽減する
- 天候や花粉を気にせずいつでも室内干しができる
- 洗濯物が生活スペース(リビングなど)に露出せず、生活感を隠せる
- 洗濯物を干しっぱなしにできるため、急な来客にも対応しやすい
ランドリールームに除湿機能付きのエアコンを設置することで、冬でも洗濯物が数時間で乾きます。
パントリー

パントリーとは、キッチン周辺に設けられる食品や飲料、使用頻度の低い調理器具などをストックするための収納スペースです。
壁面収納タイプと、人が中に入れるウォークインタイプがあり、まとめ買いした食材や非常食、かさばる日用品のストックを一箇所に集中収納できます。
キッチンをすっきり保ち、家事の効率化と買いすぎ防止に役立つ人気の設備です。
【メリット】
- キッチンカウンターや調理台が散らからないため、料理スペースを広く使える
- 食材や日用品の在庫管理がしやすくなり、二重買いを防げる
- 非常食や災害用の備蓄品をまとめて収納でき、防災対策にも役立つ
- 来客時など、急な生活感を隠したい時に一時的に物を入れておける
シューズクローク

シューズクロークとは、玄関に隣接して設けられる、靴を履いたまま出入りできる広めの収納スペースのことです。
下駄箱と異なり、靴だけでなく、ベビーカー、ゴルフバッグ、アウトドア用品、子どもの外遊び道具、傘立て、さらには上着をかけるハンガーパイプなども収納できます。
玄関から直接室内へ上がれる「通り抜け型(ウォークスルー)」と、通り抜けはできない「ウォークイン型」があり、間取りやライフスタイルによって選べます。
【メリット】
- 靴や外で使うものが玄関に散らからず、常にすっきりとした状態を保てる
- 外で汚れたものを室内に持ち込む前に収納でき、室内の汚れを防げる
- 季節外れの靴や長靴など、大量の靴をまとめて収納できる
- 外出時のコートやマフラーをしまえ、利便性が高い
ファミリークローゼット

ファミリークローゼットとは、家族全員の衣類や小物を一箇所にまとめて収納するための大型の共有クローゼットです。
各個人の寝室にクローゼットを設ける代わりに、着替えや洗濯の動線を考慮した場所に配置されます。
ランドリールームや脱衣室の近くに配置すれば、洗濯物を「洗う→干す→しまう」という流れを最短距離で完結させることができ、家事の効率が飛躍的に向上します。
【メリット】
- 家族全員の衣類管理が一箇所で済み、家事動線が大幅に短縮される
- 個室に収納を設ける必要がなくなり、各居室を広く使える
- 家族がリビングなどで服を散らかすのを防ぎ、部屋が散らかりにくい
- 家族の衣類を一目で把握でき、衣替えの手間が軽減される
アイランドキッチン

アイランドキッチンは、シンクやコンロが壁から離れており、「島(アイランド)」のように独立して配置されているタイプのキッチンです。
キッチンの周囲を360度どこからでも回遊できるのが最大の特徴です。
主にリビングやダイニングと一体化したオープンな間取りに採用され、開放感があり、デザイン性が高いことから人気があります。調理中もリビングにいる家族とのコミュニケーションが取りやすいのが魅力です。
【メリット】
- 開放感があり、キッチンが部屋の主役となるデザイン性の高さがある
- 複数人での作業がしやすく、家族や友人と一緒に料理を楽しめる
- 両サイドからアクセス可能なため、配膳や片付けの動線がスムーズになる
- 調理中もリビングの様子が見やすく、家族とのコミュニケーションが取りやすい
和室(タタミスペース)

和室やタタミスペースは、畳を敷き詰めた日本の伝統的な空間です。
現代の注文住宅では、必ずしも独立した純和風の部屋ではなく、リビングの一角に設ける「小上がり」や仕切りのないオープンな空間として採用されることも増えています。
客間、子どもの遊び場、昼寝スペース、洗濯物を畳む作業場など、多目的に使える柔軟性が魅力です。
建具(ふすまや障子)を設ければ、個室としても利用でき、来客時の宿泊スペースにもなります。
【メリット】
- 多目的な利用が可能(客間、遊び場、昼寝、家事スペースなど)
- 畳特有の吸湿性・調湿性があり、夏は涼しく冬は暖かい
- 畳のやわらかさにより、安全性が高く、特に小さな子どもがいる家庭に適している
- 建具を使えば、リビングと空間を仕切ることも可能
吹き抜け

吹き抜けとは、建物の一部の階の床を作らず、1階と2階またはそれ以上の階を縦方向に繋げた開放的な空間のことです。
主にリビング上部に設けられることが多く、室内に大きな縦の広がりができることで、開放感が生まれます。
高い位置に窓を設けることで、より多くの自然光を室内に取り込むことができ、部屋全体を明るくする効果があります。
また、上下階の家族間の声が届きやすくなるため、コミュニケーションのしやすさも魅力です。
【メリット】
- 開放感があり、実際の床面積以上の広さを感じられる
- 高い位置の窓から光を取り込み、室内を明るくできる
- 上下階の家族間でコミュニケーションが取りやすくなる
- 上昇気流を利用した自然換気(通風)に役立てられる
ウッドデッキ

ウッドデッキは、リビングやダイニングなどの掃き出し窓の外に、木材や樹脂製の素材で床面を張り出して設けるテラスのことです。
室内と庭や外部空間をつなぐ役割を果たし、段差を少なくすることで、リビングの延長として一体的に利用できます。
屋外でありながら、リビングの床面と近い高さにあるため、そのままアクセスしやすいです。
椅子やテーブルを置いて食事やお茶を楽しんだり、子どもの遊び場、バーベキュー、洗濯物干し場などとして使用したり、多目的に活用できます。
【メリット】
- 室内と外部空間をつなぎ、リビングに開放感を与える
- アウトドアリビングとして、様々な活動に利用できる
- 庭への出入りが容易になり、庭との一体感が生まれる
- 洗濯物を干すなど、家事スペースとしても便利に使える
ビルトインガレージ

ビルトインガレージ(インナーガレージ)とは、建物の1階部分や地下の空間の一部を駐車場として組み込んだ車庫のことです。
都市部の狭小地など、敷地を有効活用したい場合に特に採用されます。
建物の内部にあるため、雨風の影響を受けずに車を保管できます。
また、居住空間からガレージへ直接出入りできる設計にすることで、雨の日でも濡れずに乗り降りや荷物の積み下ろしが可能です。
【メリット】
- 敷地を有効活用できるため、狭小地に有利
- 車が雨風や直射日光から守られ、劣化を防げる
- 居住空間から濡れずに車の乗り降りが可能
- シャッターなどで閉じれば、防犯性が向上する
趣味部屋・ワークスペース

趣味部屋やワークスペースは、家族の共用空間とは別に、個人の趣味活動や仕事、勉強などに集中できる空間として設ける部屋やスペースのことです。
完全に独立した個室の形もあれば、廊下や階段の下を活用した「ヌック」や「スタディコーナー」のような半個室の形もあります。
特にリモートワークが普及した現代では、ワークスペースの需要が高まっています。
【メリット】
- 仕事や勉強に集中できる環境を確保できる
- 趣味の道具や資料を広げたままにでき、片付けの手間が減る
- オンライン会議などで生活音を気にせず話せる
- 家族がリビングなど共用空間で過ごす時間を邪魔しない
注文住宅の間取りで後悔しないための8つの重要ポイント
こちらでは、注文住宅の間取りで後悔しないための8つの重要ポイントを解説します。
家族全員が生活しやすい動線を考える
家族が日常行う「生活動線」と家事を行う「家事動線」の2つを考慮し、移動距離の短縮と効率化を図りましょう。
特に水回りを集約したり、回遊動線を取り入れたりすることで、朝の身支度や料理中の洗濯など、複数の作業がスムーズになります。
家事動線・生活動線を最短にすることが、ストレスフリーな暮らしの基本です。
- 洗濯動線:洗濯機→物干し→収納が近いか
- 料理動線:冷蔵庫→シンク→コンロが三角形に配置されているか
- 朝の支度動線:寝室→洗面所→クローゼット→玄関がスムーズか
ランドリールームを1階に配置し、洗濯物を干す→畳む→しまうを同じフロアで完結させることが一番の家事動線をよくするポイントです。
家具や水回りの設置場所も含めて検討する
「ぐるぐる動線」で家事効率を最大化します。
「ぐるぐる動線」とは、キッチン、パントリー、洗面所、ランドリールーム、ファミリークローゼットをぐるっと一周できる動線のこと。
ぐるぐる動線にすることで、家事中に行き止まりがないため、スムーズに移動できます。また、複数人で家事をしてもぶつからないため、夫婦で協力しやすいといったメリットがあります。
他には、コンセント・スイッチの位置も重要です。
リビングには、壁の4隅にコンセントを配置すると良いでしょう。家具の置き場所に制限されたくない方は、床に埋め込み式のコンセントを設置するのもおすすめです。
また、寝室にはベッドの両サイド、廊下には掃除機用にコンセントを設置すると使い勝手がよくなります。
生活音を意識する
生活音は、家族間のストレスの原因になることがあります。
特に、活動時間帯が異なる家族がいる場合、寝室などの静かに過ごしたい空間と、水回りを離すことをおすすめします。
リビング・子ども部屋などを、廊下や収納(クローゼット・納戸)を挟んで離す配置にするのも有効です。
上下階で部屋の用途を重ねる際も、寝室の真上に水回りを設けないなど、音の伝わりにくいゾーニングを意識しましょう。
また、外部の騒音が気になる場合は、道路側に収納や玄関を配置し、寝室の窓を防音性の高いものにするなどの対策も効果的です。
- 1階の寝室の真上に2階のトイレ。夜中の水音で目が覚める
- 子ども部屋の隣がリビング。テレビの音がうるさくて勉強できない
- リビング階段で2階の足音が響く
採光や風通しを考慮して窓を配置する(パッシブデザイン)
「パッシブデザイン」とは、エアコンなどの機械設備に頼らず、建物の配置や窓の工夫で自然のエネルギーを最大限に活用し、快適性と省エネを両立させる設計思想です。
冬は南側に大きな窓を配置し、太陽の熱を積極的に取り込むことで暖房費を減らせます。また、軒や庇(ひさし)を深く設けることで、夏は太陽の高い日差しを遮り、室温上昇を防ぎます。
吹き抜けや階段、高窓を活用し、暖房は1階に、冷房は2階に設置することで、効率的に熱をコントロールが可能です。
- 南向きに大きな窓:冬の日差しを取り込む
- 北側の窓は小さめ:熱の損失を防ぐ
- 風の通り道を確保:南北または東西に窓を配置
ただし、窓が多すぎると断熱性能が低下するため、注意が必要です。
オヒサマノイエなら、高気密性と高断熱性の家づくりをしているので、採光と風通しを両立できます。
収納スペースを確保する
収納スペースは、量だけでなく「場所」と「使い方」が重要です。
物があふれて生活感が出すぎるのを防ぎ、日々の片付けを楽にするためには、生活動線に沿った「適材適所」の収納を確保しましょう。
掃除用具はリビング近く、衣類は寝室の近くや着替えの動線上に、食品ストックはキッチン横に配置したパントリーなどを設けます。
収納は、床面積の10~15%程度を目安に、将来の家族構成の変化も見越して余裕を持たせると過不足が起こりにくいです。
予想が立たない方は、棚の高さを変えられる可動棚や、靴だけでなくコートやアウトドア用品もしまえるシューズクロークなどを設置しておけば後悔しにくいです。
その他、階段下や廊下の壁面など、デッドスペースを有効活用した収納も検討してみてください。
無駄になりがちなスペースにも細かく収納を設けることで、大型の収納に頼らずとも十分な収納力を確保できます。
収納は使う場所の近くに設置する
収納計画で最も後悔しやすいのが、収納の「場所」です。
基本は使う場所の近くに収納を設置すること。「使う場所から3歩以内」に配置しましょう。
単に広い収納を設けるよりも、使う場所のすぐ近くに収納できるように分散配置することが重要です。
使う場所に収納を設けることで、元の場所に戻すのが楽になり、家族全員が自然と片付けられる仕組みができます。
- 玄関にシューズクローク:靴、コート、ベビーカー、外遊び道具を収納
- キッチンにパントリー:食材、調味料、日用品を収納
- 洗面所にランドリールーム:タオル、洗剤、家族の衣類を収納
- リビングにリビング収納:おもちゃ、掃除機、書類を収納
- 寝室にファミリークローゼット:衣類、バッグ、アクセサリーを収納
希望する間取りの優先順位を決めて検討する
理想の注文住宅を建てる際、全ての希望を叶えることは、予算や敷地の制約上難しいことがほとんどです。
後悔を避けるためには、間取りの「絶対条件」と「妥協できる点」、「できれば」を明確にして優先順位を決めておくことが重要になります。
家族それぞれの希望を出し合った上で、どの要素を優先するかをすり合わせ、ブレない判断軸を作りましょう。
優先順位を設計士や工務店に正確に伝えることで、限られた予算と広さの中で最適な間取りを提案してもらいやすくなります。
優先順位を決めておけば、打ち合わせ中に迷ったり後悔したりするリスクを大きく減らせます。
ライフステージの変化を考慮する

10年後、20年後の暮らしを想像して間取りを決めましょう。
将来、部屋を分割・統合できるように、可変性のある間取りにするのがおすすめです。実際に、写真のように、後から間取りを変えられるように広く部屋をとることもできます。
【チェックポイント】
- 子どもの成長:個室は必要か、いつまで使うか
- 親との同居:将来、親を呼び寄せる可能性はあるか
- 夫婦二人の老後:階段の上り下りは大丈夫か
老後も階段を使わず生活できるよう、1階に寝室を配置したり、段差をなくし、廊下を広くするバリアフリーにしたりするのもひとつです。
注文住宅の間取りをシミュレーションする方法
まずは手軽にシミュレーションできないかなという方には、シミュレーションアプリを活用してみてください。間取りシミュレーションで、完成後のイメージを事前に確認できます。
おすすめのシミュレーションアプリを以下にまとめました。
| アプリ名 | リンク |
|---|---|
| プランナー5D | ・iOS版はこちら ・Android版はこちら |
| 再現間取りメーカー | ・iOS版はこちら ・Android版はこちら |
| 間取りTouch+ | ・iOS版のみ |
| ルームプランナー | ・iOS版はこちら ・Android版はこちら |
ある程度イメージが固まったという方や、難しいからヒアリングを受けて決めていきたいという方はまずはお気軽にお問い合わせください。
オヒサマノイエにご相談ください!
解決します。

注文住宅

リフォーム

リノベーション

自宅サウナ

家事ラクと収納にこだわるなら、オヒサマノイエにご相談ください
注文住宅の間取りは、家族の暮らしやすさを左右する最も重要な要素です。
「洗濯が面倒」「収納が足りない」「家事に追われて疲れる」といった悩みのある家を建てると、毎日がストレスになってしまいます。
オヒサマノイエでは、女性コーディネーターがママ目線で「家事ラク」を実現します。
ランドリールーム、パントリー、ファミリークローゼットを最短動線で配置し、家事時間を短縮。
高気密高断熱の高性能住宅だから、吹き抜けやリビング階段でも快適で、光熱費も安心です。
間取りのお悩み、土地探し、資金計画まで、すべてサポートいたしますので、まずは無料の家づくり相談会にご参加ください。
以下のLINEやメール、電話からお気軽にお問い合わせいただければ、日程を調整させていただきます。
オヒサマノイエにご相談ください!
解決します。

注文住宅

リフォーム

リノベーション

自宅サウナ
